+48 794 246 362

Inwentaryzacja architektoniczna młyna i skaning 3D Młyn Jezuitów w Nowym Sączu
Zabytkowy budynek dawnego młyna jezuickiego w Nowym Sącz to od lat niszczejący i uznawany za jedno z najbardziej zaniedbanych miejsc w mieście. W niedługim czasie wreszcie budynek doczeka się gruntownej modernizacji i przejdzie metamorfozę. Informacja o planowanej rewitalizacji pojawiła się już w 2021 roku i wywołała ogromny entuzjazm wśród mieszkańców. Pierwszym krokiem do tego celu była inwentaryzacja architektoniczna młyna, którą wykonaliśmy metodą skanowania 3D. Obiekt położony przy wjeździe do Nowego Sącza od strony Krakowa przez wiele lat psuł estetykę miasta. Wojewódzki Małopolski Konserwator Zabytków wydał zgodę na jego remont, a pierwsze prace związane z przebudoą rozpoczęły się w 2025r.

Precyzyjny pomiar Młyna Jezuitów skanerem 3D
Modernizacja młyna Jezuitów w Nowym Sączu
Historia inwestycji sięga kilku lat. Stary Młyn, wybudowany w 1843 roku, przez długi czas znajdował się na liście tzw. „miejsc wstydu” Nowego Sącza. Zrujnowany obiekt straszył kierowców wjeżdżających do miasta, a jego stan techniczny z roku na rok pogarszał się. W 2021 roku ogłoszono, że budynek ma zostać przekształcony w nowoczesne centrum usługowe pod nazwą „Brama Miasta”. W planach znalazły się restauracje, punkty gastronomiczne, siłownia. Planowana jest także budowa nowego parkingu w sąsiedztwie obiektu.
Rewitalizacja nada młynowi zupełnie nowy charakter i stanie się on wizytówką Nowego Sącza. Mieszkańcy liczyli, że powstanie tu atrakcyjna przestrzeń spotkań, łącząca historię z nowoczesnością. Jednak w 2022 roku inwestycja została wstrzymana z powodu braku zgody ze strony konserwatora zabytków w Krakowie, mimo że – jak podkreślano – projekt był zgodny z wcześniejszymi wytycznymi.
Sprawa trafiła do Generalnego Konserwatora Zabytków w Warszawie, a temat budził coraz większe zainteresowanie lokalnej społeczności. Przełom nastąpił 8 marca 2025 roku. Małopolski Wojewódzki Konserwator Zabytków wydał wtedy pozwolenie na realizację projektu. Dokument obejmuje zarówno modernizację zabytkowego budynku młyna jezuickiego, oraz budowę nowego obiektu usługowo-handlowego.
Pomiary 3D skanerem i inwentaryzacja młyna




Zgodnie z decyzją konserwatora, właściciel obiektu może podjąć działania mające na celu przywrócenie budynku do dobrego stanu technicznego. To otwiera drogę do realizacji długo wyczekiwanej inwestycji, która ma odmienić przestrzeń przy wjeździe do Nowego Sącza i stać się ważnym punktem na mapie miasta. Nie byłoby to możliwe, gdyby nie wykonana przez nas w 2020r. inwentaryzacja architektoniczna młyna.
Modernizacja Starego Młyna nie tylko uratuje jeden z cennych zabytków, ale także wpłynie na rozwój infrastruktury miejskiej. Wszystko wskazuje na to, że jeśli plany zostaną zrealizowane to miejsce to stanie się nową wizytówką Nowego Sącza i atrakcyjną przestrzenią dla mieszkańców oraz turystów.
+48 794 246 362
Problemy do rozwiązania dla zadania inwentaryzacja architektoniczna młyna przez Inwestora:
Aby w ogóle zaczęto rozważać możliwość przebudowy obiektu, niezbędnym krokiem była inwentaryzacja budowlana. Przeprowadziliśmy my ją stosując nowoczesne techniki pomiarowe tj. skaning 3D. Inwestor wybrał Bimsmart do realizacji tego zadania ponieważ:
- Inwentaryzacja obiektu byłaby zbyt długotrwała metodami klasycznymi z powodu wielkości oraz geometrii obiektu
- Brak dostępności do obiektu w czasie niezbędnym do inwentaryzowania metodami klasycznymi
- Niska dokładność końcowa inwentaryzacji drogą klasyczną
- Brak marginesu czasowego na dodatkowe pomiary w terenie


Co uzyskano stosując metodę inwentaryzacji 3D:
- Oszczędność czasu 4-6 tygodni w harmonogramie projektu
- Pełną inwentaryzację „scan2bim” w 14 dni
- Dokładność inwentaryzacji architektoniczno-budowlanej na poziomie kilku mm
- Model BIM oraz dokumentację 2D do dalszych analiz i prac projektowych
- Cyfrową platformę wymiany danych o obiekcie Projektant-Zamawiający-Inwestor
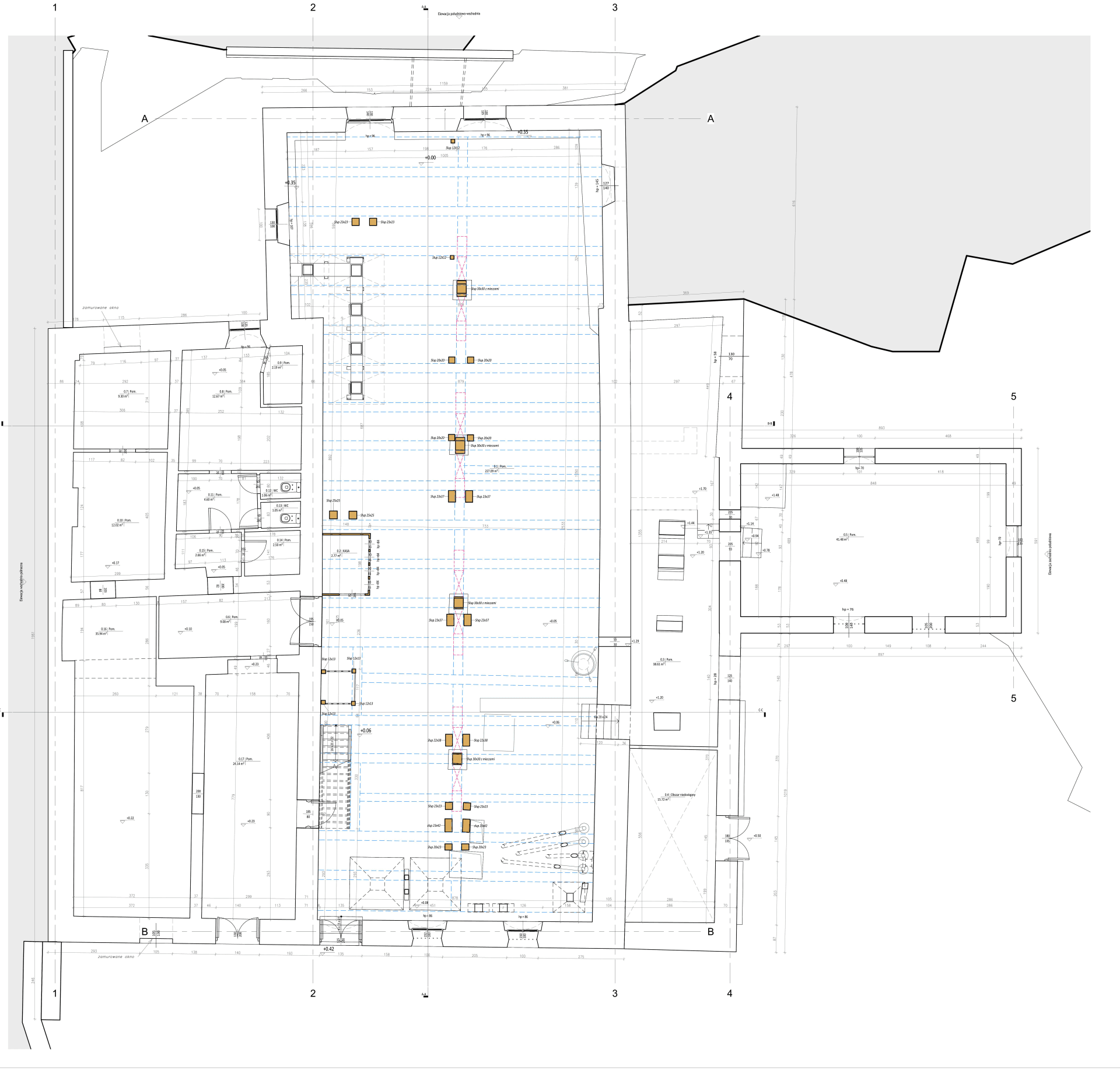
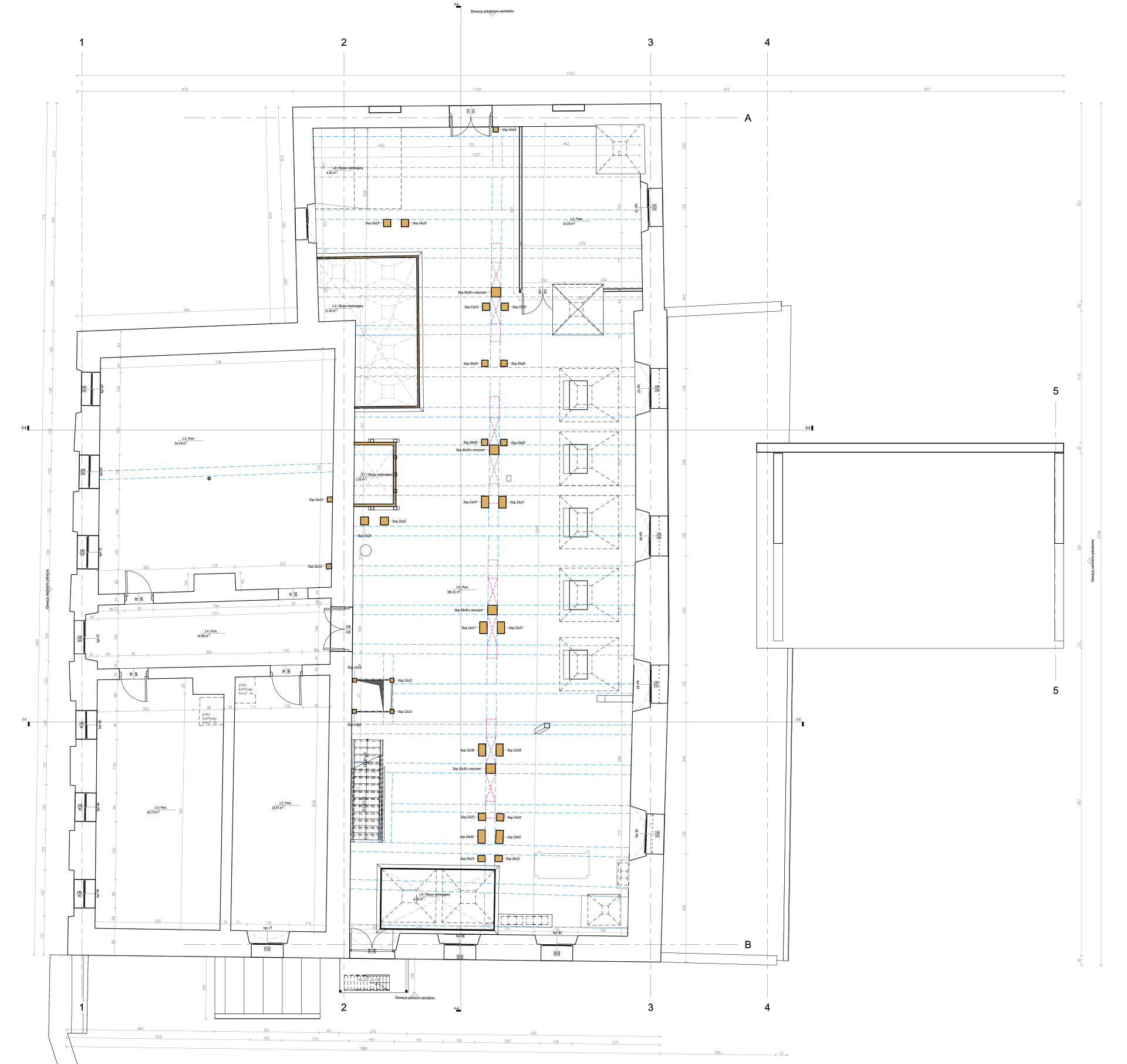
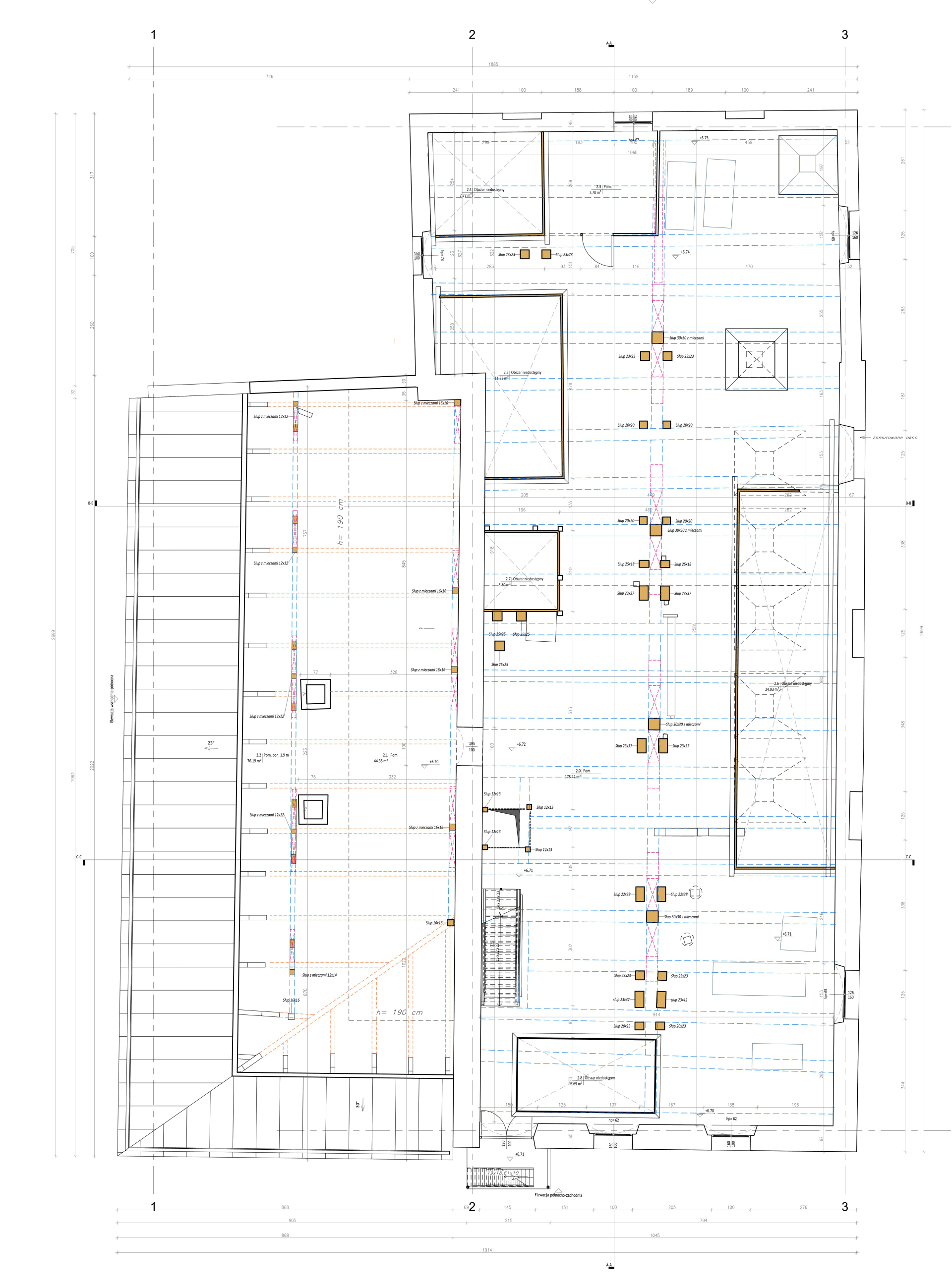
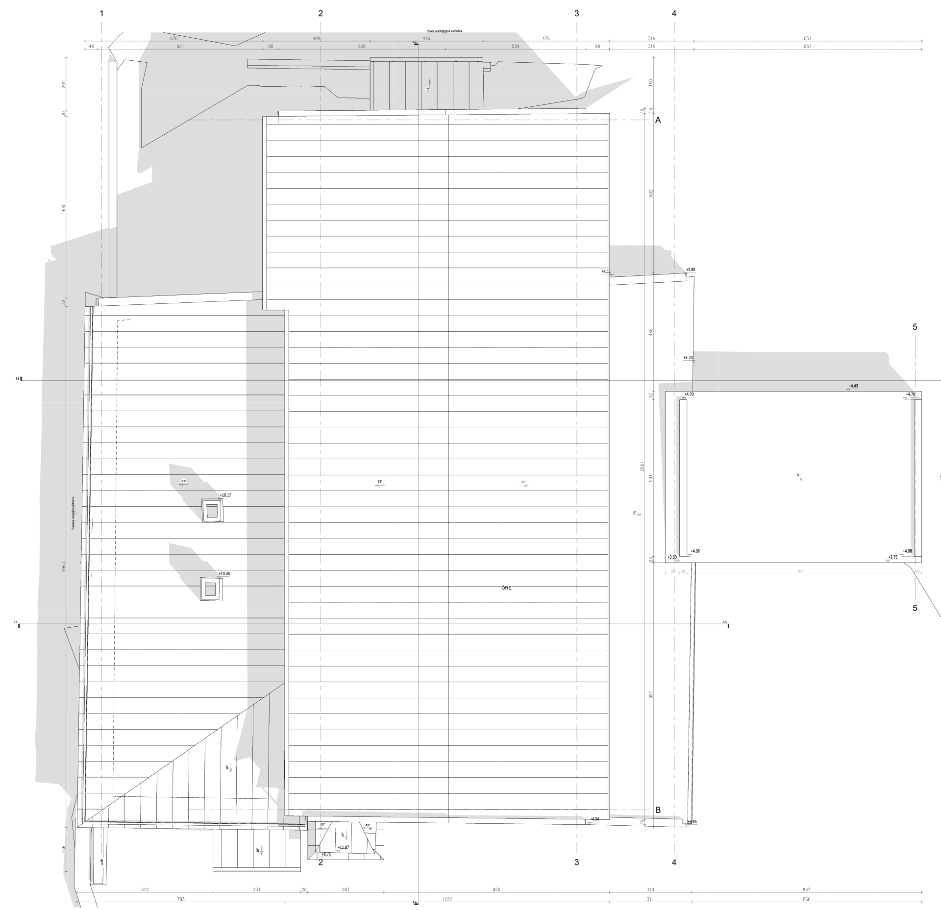
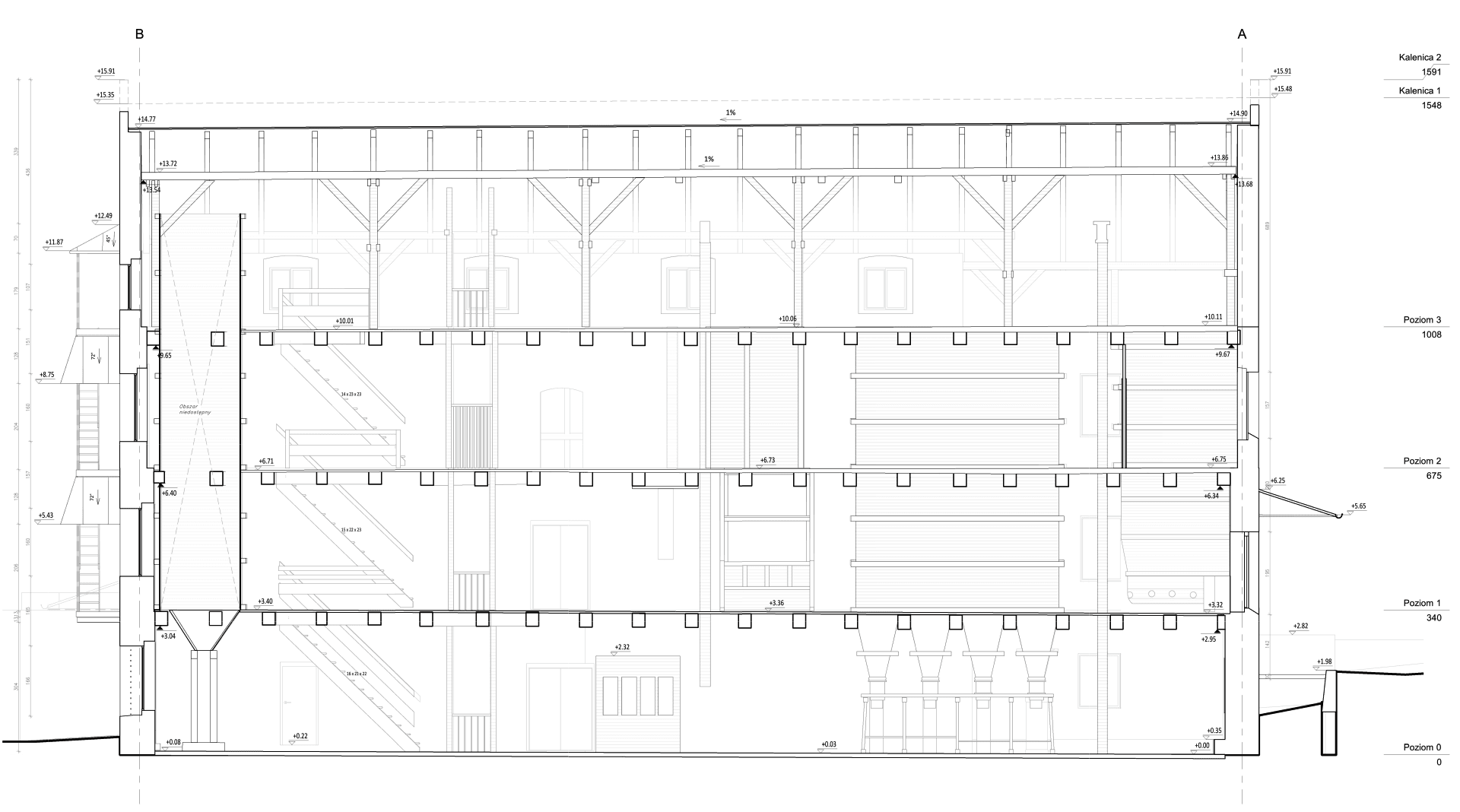
Model 3D – inwentaryzacja architektoniczna młyna Jezuitów w Nowym Sączu
arch. Paweł Kurzeja
Dodatkowy czas poświęcony dokładnej inwentaryzacji obiektu budowlanego, zwłaszcza w przypadku obiektów historycznych takich jak Młyn Jezuitów w Nowym Sącz, powinien być traktowany jako czas zaoszczędzony, gdyż wielokrotnie zapobiega on przyjęciu rozwiązań projektowych niemożliwych do realizacji czy niedostosowanych do zastanej w budynku sytuacji, dlatego w tej realizacji wykorzystano najlepszą możliwą technikę tj. skan laserowy 3D, aby w pełni zobrazować budynek.
Platforma komunikacji projektant – inwestor
Zinwentaryzowany młyn przenieśliśmy w postaci cyfrowej repliki budynku na biuro Projektanta i Inwestora tworząc cyfrowe zdjęcia 360. Pozwalają one min. do „zobaczenia” wnętrza budynku bez wychodzenia z biura, sprawdzenia odległości, wysokości, powierzchni, ale przede wszystkim pokazują jakościową inwentaryzację stanu zastanego budynku. Stanowi to uzupełnienie wykonanej dokumentacji płaskiej i modelu 3D, ułatwiając projektantom weryfikację modernizowanego obiektu na każdym etapie prac projektowych.
Potrzebujesz precyzyjnej inwentaryzacji architektonicznej młyna, folwarku, zabytkowego budynku, który zamierzasz zmodernizować?
Zadzwoń pomożemy Ci w tym
+48 794 246 362
Przygotowanie inwentaryzacji budowlanej do remontu, rewitalizacji, modernizacji lub prac konserwatorskich to nasza specjalność!


























