+48 794 246 362

Layout – ustawienie maszyn na hali produkcyjnej
Inwentaryzacja hal produkcyjnych i skanowanie ustawienia maszyn (layout) to jeden z najczęściej poruszanych tematów podczas remontów, renowacji, cyfrowej transformacji zakładów produkcyjnych. Layout, czyli rozmieszczenie elementów pracy wewnątrz zakładu produkcyjnego, przemysłowego lub biura. Odpowiednie ustawianie maszyn ogromny wpływ na efektywność operacyjną oraz jakość, produktów i usług. W kontekście lean management, odpowiednio zaprojektowany layout ma na celu eliminowanie marnotrawstwa zasobów i przestrzeni, oraz maksymalizację wartościowych operacji poprzez minimalizację niepotrzebnych ruchów, transportu czy nadmiernych zapasów. W Bimsmart pomagamy optymalizować procesy realizując skanowanie 3D ustawiania maszyn, inwentaryzację zakładów przemysłowych i layoutów, które wykonujemy m.in. w Warszawie, Gdańsku, Katowicach, Poznaniu, Krakowie, Wrocławiu, Zabrzu, Toruniu, Lublinie, Chorzowie, Łodzi, Bydgoszczy, Białymstoku, Gdyni, Bielsku Białej, Sosnowcu, Tychach, Szczecinie, Opolu, Dąbrowie Górniczej, Częstochowie
Czym jest layout w firmie produkcyjnej?
Inaczej mówiąc layout czyli. graficzny plan ustawienia maszyn na hali produkcyjnej to widok z lotu ptaka na cały obszar lub fragment pomieszczenia z umiejscowieniem wszystkich elementów. Taki układ przestrzenny ukazany z lotu ptaka powinien wskazywać nie tylko rysunki lub symbole urządzeń, ale także kluczowe informacje dotyczące: dróg transportowych, pomocniczego osprzętu jak np.: suwnice, przyłączy mediów, pól odkładczych, kwestii BHP – czyli wyjść ewakuacyjnych i miejsc zbiórek, a także przepływu materiałów.
W kontekście zarządzania produkcją obszarem ukazanym na layocie jest hala produkcyjna, a najistotniejszymi elementami z punktu widzenia lean są maszyny i stanowiska robocze. Zrozumienie strategii lean layout, jak również znajomość kluczowych koncepcji i techniki, które mogą pomóc firmom w optymalizacji swojej przestrzeni pracy w dążeniu do doskonałości operacyjnej stanowi newralgiczny punkt w zarządzaniu przedsiębiorstwem produkcyjnym. Zrozumienie tego zagadnienia może stanowić fundament skutecznej transformacji procesów produkcyjnych, oraz zarządzania operacjami w organizacji.

Skanowanie ustawienia maszyn 3D – technologia, która cyfrowo rejestruje kształty obiektów fizycznych
Skan laserowy 3D to technologia, która wykorzystuje wiązkę światła laserowego do zapisania kształtu przedmiotów w formie cyfrowej. Rozpoznając dokładny rozmiar i kształt obiektu lub określonego środowiska, skaner laserowy gromadzi dane, które umożliwiają przekształcenie tego przedmiotu w trójwymiarową replikę w środowisku cyfrowym. Technologię tę wykorzystuje się w inżynierii, głównie przy projektowaniu architektonicznym, modernizacji hal przemysłowych, monitorowaniu ustawienia maszyn na liniach produkcyjnych. Technika skanowania 3D coraz większą popularność zyskuje w przemyśle wytwórczym czy skanowaniu zabytków.
Skanera laserowego 3D używa się przede wszystkim tam, gdzie jego zdolność wytworzenia cyfrowej kopii zakładu produkcyjnego stanowi wartość dodaną. Coraz zakładów dąży do posiadania swojego cyfrowego odpowiednika w wirtualnym świecie tzw. cyfrowego bliźniaka. Proces jest niezbędny, aby skutecznie realizować założenia transformacji przemysłowej – przemysł 4.0 i IOT. Wielu producentów rozważa budowę nowych obiektów produkcyjnych, lub przebudowę obecnych, jednak w sporej ilości przypadków nie dysponuje aktualnymi układami swoich fabryk lub dokumentacją dotyczącą istniejących obiektów.
W takim przypadku skaner laserowy może dostarczyć danych dotyczących istniejących układów potrzebnych do dalszego planowania. Jeśli skaner laserowy zostanie wykorzystany w całym procesie konstrukcyjnym, nowy obiekt będzie wyposażony w dokumentację ze wszystkich głównych etapów projektu. Oznacza to, że dzięki skanerowi można określić, co znajduje się za ścianami, nad sufitem i pod podłogą, a także stworzyć zestawienie obecnych w zakładzie maszyn. Jest to cenna dokumentacja, z której producenci mogą korzystać w całym cyklu życia zakładu produkcyjnego.

Jakie korzyści przynosi wdrożenie layout’u w firmie, przedsiębiorstwie?
Wdrożenie optymalnego layoutu przynosi mnóstwo istotnych korzyści dla przedsiębiorstwa. Poprzez odpowiednie rozmieszczenie maszyn, stanowisk pracy i obszarów przechowywania materiałów, zauważa się wyraźny wzrost wydajności produkcji. Dzięki zoptymalizowanemu układowi procesów oraz eliminacji niepotrzebnych ruchów, czy opóźnień, firma może zwiększyć ilość wyprodukowanych jednostek w tym samym czasie.
Dodatkowo efektywne zaprojektowanie layoutu sprzyja zwiększeniu efektywności produkcji poprzez skupienie się na operacjach dodających wartość. Eliminacja niewykorzystanych przestreni i optymalizacja przepływu pracy pozwala na skupienie się na czynnościach istotnych dla klienta, co przekłada się na jakość i wartość finalnego produktu. Zwiększa się konkurencyjność firmy przy jednoczesnej oszczędności czasu produkcji.
Wzrost płynności produkcji jest kolejną korzyścią płynącą z odpowiedniego układu przestrzennego. Dzięki eliminacji zbędnych zapasów oraz poprawie przepływu materiałów i informacji, firma może szybciej reagować na zmiany w zapotrzebowaniu klientów oraz unikać opóźnień w produkcji.
Wreszcie, wdrożenie optymalnego layoutu może prowadzić do zwiększenia obciążenia stanowisk pracy poprzez lepsze wykorzystanie zasobów ludzkich i maszynowych. Co sprawi, że pracownicy będą bardziej wydajni, co przekłada się na wzrost produktywności i rentowności firmy.
Layout w skali makro i mikro – skanowanie 3D maszyn, urządzeń, stanowisk roboczych
Layout w skali makro – to odzwierciedlenie ułożenia wszystkich elementów na całej hali produkcyjnej. Analizując layout w skali makro, skupiamy się na zagwarantowaniu ciągłego przepływu, tworząc liniowe i gniazdowe formy organizacji stanowisk roboczych, redukując odległości pomiędzy stanowiskami kooperującymi, tym samym zmniejszając czas operacji transportowych.


Skanowanie ustawienia maszyn niesie olbrzymie korzyści i oszczędności w zakresie pracy i środków związanych z pomiarami oraz stworzeniem cyfrowej wersji zakładu. Dysponując dokładnym, co do milimetra, układem fabryki, można uniknąć kosztownych przeróbek i zwiększyć wykorzystanie powierzchni produkcyjnej. Skanowanie za pomocą lasera jest szybkie, wydajne, ekonomiczne i precyzyjne. Pozwala na zapisanie dokładnego położenia i wymiarów obiektu. Dzięki tej technologii można odbyć wirtualny spacer po zakładzie, a uzyskane za jego pomocą dane można transferować do układów współrzędnych na wyższych poziomach. Wykonanie pomiarów bez użycia skanera laserowego może potencjalnie skutkować błędami, czego konsekwencją mogą być kolizje nowych urządzeń. Często nie jest to widoczne przed ostatecznym montażem, co może kosztować producenta zarówno czas, jak i pieniądze.
Skan 3D zakładu produkcyjnego
Wykonaj aktualny plan hali i zaktualizuj layout Twojego zakładu.
+48 794 246 362
Model 3D ustawienia maszyn i urządzeń przygotowany po obróbce chmury punktów
Layout w skali mikro – to layout poszczególnych stanowisk roboczych lub obszarów, wraz ze wszystkimi elementami niezbędnymi do wykonywania pracy. Mówimy tu o całym otoczeniu maszyny i przestrzeni roboczej operatora wraz ze sposobem poruszania się po nim. W związku z tym oprócz zapewnienia swobodnego przepływu czynników produkcji na stanowisku, należy zadbać również o ergonomiczne warunki pracy.



Przed przekształceniem w model 3D, chmury punktów i sitaki mesh są transferowane do systemu CAD
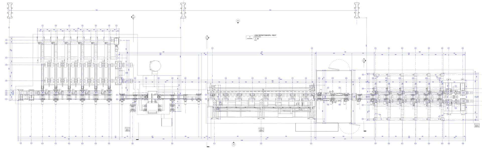
Aby uzyskać odpowiednie rezultaty skanowania laserem, wykonujemy pomiary w oparciu o różne punkty odniesienia i lokalizacje skanowania. Dokonując pomiaru odległości we wszystkich kierunkach, skaner z dużą prędkością rejestruje kształt powierzchni przedmiotów, budynków, terenu i ustawienia maszyn na linii produkcyjnej. Po wykonaniu pomiarów transferuje się dane (chmury punktów lub siatki mesh) do systemu CAD w celu opracowania modelu 3D obiektu. Taki model 3D można następnie połączyć z modelem 3D naszego systemu, tworząc bardzo szczegółowy, wirtualny widok skanowanej lokalizacji hali produkcyjnej. Poniżej zamieszczono przykład opracowania modelu 3D z chmury punktów linii defektoskopu.
Po co tworzyć plan hali, zakładu i skanować layout?
Posiadanie rzetelnie przygotowanej i przede wszystkim aktualnej „wirtualnej mapy”, a także chęć jej doskonalenia, pozwala na:
- elastyczne reagowanie przy wprowadzaniu zmian w procesach oraz możliwość przewidzenia ich konsekwencji,
- identyfikację nieprzemyślanych, źle zorganizowanych transportów oraz ruchów między stanowiskami,
- pracę nad zachowaniem ciągłości przepływu, eliminacją wąskich gardeł oraz sprawną dystrybucją informacji,
- poprawę komunikacji,
- poszukiwanie kierunków rozwoju przedsiębiorstwa poprzez bardziej efektywną adaptację przestrzeni i możliwość inwestowania w powiększenie parku maszynowego,
- dostosowanie przestrzeni składowania oraz magazynów do faktycznych potrzeb produkcyjnych,
- organizowania procesów ze świadomym podziałem na kluczowe grupy produktowe.
Bez tej wiedzy organizacji grozi brak rozwoju przedsiębiorstwa. Layout eliminuje ryzyko przypadkowego rozmieszczania maszyn, a w dalszej konsekwencji strat czasu, energii oraz zasobów, których niedostrzeżenie w skali lat może przyczynić się do utraty przewagi konkurencyjnej.
Jak stworzyć cyfrową mapę zakładu produkcyjnego?
Technologia, która cyfrowo rejestruje kształtu obiektów fizycznych czyli skaning laserowy idealnie nadaje się do tego zadania. Skanowanie laserowe jest wydajną i bardzo dokładną technologią do pomiarów 3D, digitalizacji zakładów i linii produkcyjnych. To potężne narzędzie pozwala zaoszczędzić czas i koszty związane z przebudową, umożliwia realizację projektów zgodnie z harmonogramem oraz dostarcza cennych informacji. Oprócz skanowania maszyn i urządzeń pozyskuje się jednocześnie dane o konstrukcji hali. Można dzięki temu stworzyć precyzyjny model konstrukcyjny obiektu w postaci inwentaryzacji architektonicznej 3D.

Jak przebiega skanowanie 3D zakładu produkcyjnego i ustawienia maszyn?
Podstawowym elementem jest zapoznanie się z charakterystyką pracy zakładu. Zachowanie bezpieczeństwa wykonania zadnia w postaci skaningu 3D przy realizowanej produkcji to baza do dalszej pracy. Drugim elementem jest poznanie dokładnego zakresu pomiarowego. Musimy wiedzieć czy realizujemy layout w skali mikro, czy makro oraz w jakiej dokładności odwzorowania elementów. Dobrym zwyczajem jest zapoznanie się z aktualnym układem layout’u w postaci wizji lokalnej lub sprawdzeniem archiwalnych dokumentów jeżeli istnieją. Wszystkie informacje pozwolą dobrać optymalne rozwiązanie pomiarowe np. impulsowy/fazowy skaner laserowy 3D, rozwiązania fotogrametryczne lub skaning mobilny.






Kiedy zmienia się layout i warto wykonać aktualizację planu zakładu?
Okoliczności wprowadzania zmian do layout’u to proces, powtarzalny, regularny, który wspomaga podejmowanie decyzji. Każdy technolog w zakładzie produkcyjnym powinien dbać o aktualność layout’u. Proces aktualizacji layot’u musi zostać uruchomiony w przypadku:
- Zakupienia nowego urządzenia, maszyny,
- Zbudowania nowej hali,
- Przeniesienia produkcji do innego miejsca,
- Wdrożenia nowego produktu,
- Wzrostu produkcji,
- Spadku produkcji oraz wycofaniu części produktów,
- Optymalizacji przepływu
Trzymając się natomiast reorganizacji już istniejącej hali, o tym, że daną przestrzeń należy, bądź można zoptymalizować, będą wskazywać Ci pewne oznaki w zakładzie np:
- Zastawione drogi transportowe,
- Zbyt szerokie lub zbyt wąskie trasy,
- Zbyt długie trasy transportowe,
- Wysoki poziom zalegających zapasów międzyoperacyjnych,
- „Celowe” składowanie rzadko wykorzystywanych części i komponentów na hali, a nie w magazynie,
- Brak miejsca na ustawienie nowych maszyn oraz urządzeń,
- Niewykorzystana przestrzeń (w tym zbyt duże pola odkładcze),
- Duża liczba urządzeń transportowych, mimo niskiego poziomu ich wykorzystania,
- Za mała lub zbyt duża powierzchnia magazynowa,
- „Rozrzucone” procesy, skomplikowany przepływ, brak płynności
- Przestarzały sprzęt o wysokiej awaryjności,
- Brak lub niedostosowana automatyzacja.
Jeżeli w tej liście zaznaczyłeś kilka razy „TAK” to znaczy, że Wasz zakład prosi się o wprowadzenie pewnych modyfikacji i warto wykonać inwentaryzację 3D layoutu i ustawienia maszyn. Niezbędnym elementem zmian będzie informacja o geometrycznym wymiarze aktualnego stanu hali, usytuowania maszyn i urządzeń.
Jak wykonać pomiar i skanowanie ustawienia maszyn aby zrealizować aktualny cyfrowy plan hali?
Jednym z najskuteczniejszych narzędzi do wykonaniu prawidłowego odwzorowania layout’u stanu istniejącego jest chmura punktów. Chmura punktów to podstawowy produkt, jaki daje skaning laserowy. Służy jako baza do dalszych opracowań CAD lub 3D np. opracowania rzutu z aktualnym rozkładem urządzeń i maszyn. Skanowanie 3D jest szybkim i bezpośrednim sposobem na pobranie dokładnych trójwymiarowych danych z otoczenia. Dlatego jest obecnie powszechnie wykorzystywana przy inwentaryzacji zakładów przemysłowych, skanowania ustawienia maszyn, modernizacji i wykrywania zmian w projektowaniu layout’ ów.
Chmura punktów to wielomilionowy zbiór wszystkich punktów, które zostały pozyskane podczas wykonywania skanowania obiektu. Dzięki temu tworzy trójwymiarowy model cyfrowy, który idealnie odzwierciedla jego kształt i rozmiar. Jest bardzo gęsta i wydaje się jednolitą powierzchnią, a poszczególne punkty widać dopiero w znacznym powiększeniu.



Posiadanie odpowiedniej wiedzy konstrukcyjno, budowlano, inżynierskiej pozwala specjalistom Bimsmart skutecznie realizować opracowania modeli 3D lub dokumentacji płaskich z zakresu modernizacji layoutów. Skanowanie ustawienia maszyn daje gwarancję skutecznej modernizacji istniejącego layout’u.
W wielu przypadkach oprócz modeli 3D zakładów produkcyjnych tworzone są opracowania w postaci dokumentacji CAD.

Przygotowanie i wdrożenie nowego layout’u – digital twin zakładu
W Bimsmart udostępniamy naszym klientom plan ustawienia maszyn i urządzeń w dowolnie wybranych przez nich formacie. Mogą to być model CAD, BIM w formatach sat, step, iges, parassolid, rvt, nwt, dgn, pln lub inżynierska dokumentacja projektowa w postaci podkładów CAD dwg, dxf. Kiedy wszystkie pomiary są już gotowe, można działać i projektować, nową, lepszą, bardziej efektywną przestrzeń.
W pierwszej fazie mamy do czynienia ze studium badawczym uwzględniającym gromadzenie oraz analizę danych oraz interpretację potrzeb. Potrzebna jest tu wiedza na temat:
- Lokalizacji,
- Profilu produkcyjnego,
- Wielkości zatrudnienia,
- Ewidencji maszyn,
- Usystematyzowania sekwencji operacji, ich czasów, a także wydajności,
- Wielkości partii produkcyjnych,
- Norm produkcyjnych,
- Wykorzystywanych surowców oraz materiałów,
- Popytu na poszczególne rodziny produktowe,
- Logistyki wewnętrznej,
- Ograniczeń technicznych na hali produkcyjnej,
- A także relacji z otoczeniem zewnętrznym: system dostaw, system wysyłek, sprzedaż
Druga faza to praca koncepcyjna. W tym momencie mamy do czynienia z ogólnym layout’em, gdzie należy określić przepływ materiałów, logikę procesów oraz wzajemne powiązania. Pomiar 3D jakim jest skaning laserowy da Ci precyzyjną informację o geometrii zakładu i hal produkcyjnych.

W dalszym etapie opracowując szczegółowy layout potrzebne są już precyzyjne dane na temat:
- Maszyn – ich nazewnictwa, ilości, gabarytów oraz potrzebnych wspomagających instalacji,
- Wymogów instalacji mediów – prąd, woda, gaz, wentylacja, sprzężone powietrze itd.,
- Warunków otoczenia produkcyjnego – temperatura, wilgotność,
- Wielkości pól odkładczych – pod dostawy surowców oraz ewentualne zapasy międzyoperacyjne,
- Szerokości dróg transportowych – uwzględniając ruch pieszych, a także pojazdów transportowych,
- Układu pomieszczeń socjalnych oraz komórek pomocniczych jak kontrola jakości, utrzymanie ruchu.
