Inwentaryzacja architektoniczna willi generalskiej Fort Bema przy ul. Waldorffa 28 w Warszawie

Piętrowa willa przy ul. Waldorffa 28 powstała w latach 20. XX w. w sąsiedztwie Fortu Bema jako jeden z budynków wojskowego kompleksu Wytwórni Amunicji nr 1. Wzniesiono ją według projektu koncepcyjnego warszawskiego architekta Aleksandra Sygietyńskiego. We wrześniu 2024 została wykonana inwentaryzacja architektoniczna willi.

Zespół ten reprezentuje tzw. architekturę dworkową, ukształtowaną na przełomie XIX i XX w. Cechowała się ona falą poszukiwań stylu narodowego, popularną szczególnie po odzyskaniu przez Polskę niepodległości. Ten nurt wykorzystywał rodzime motywy architektoniczne odwołujące się do polskiego baroku i klasycyzmu. Stąd czterospadowe łamane dachy, kolumnowe portyki, czy arkady. Przed 1927 r. przy obecnej ul. Waldorffa wybudowano domy mieszkalne: cztery po południowej stronie ulicy przeznaczone dla majstrów i pięć po północnej stronie dla oficerów. Od strony wschodniej wzniesiono budynek nr 22 potocznie nazywany „willą generalską”, pełniący funkcje administracyjne.

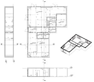
Po przeciwnej stronie stanął największy z domów mieszkalnych w tym zespole – willa pod numerem 28. Mimo że większość domów w Zespole Wytwórni Amunicji nr 1 stała pusta i niszczała każdego roku, to budynek przy Waldorffa 28 był wciąż zamieszkiwany. Dzięki temu jego stan nie był wcale taki zły. Niestety uległ od w ostatnich latach dwum pożarom. To właśnie ten obiekt mieliśmy przyjemność zdigitalizować – wykonać inwentaryzacja architektoniczna willi. Wykonaliśmy precyzyjne skanowanie 3D i inwentaryzację architektoniczną budynku.

willa przy forcie bema inwentaryzacja skan po pożarze
Willa przy forcie Bema przy ul. Waldorffa 28 podczas nalotu fotogrametrycznego. Uszkodzenie dachu po pożarze.


Model 3D Revit wykorzystany zostanie do odtworzenia więźby dachowej i pokrycia dachowego. Prace te mają na celu niezbędne zabezpieczenie obiektu budowlanego przed niekorzystnymi warunkami atmosferycznymi. W dalszej części na bazie wykonanej przez nas inwentaryzacji konserwatorskiej zabytku posłuży do architektonicznych prac projektowych przystosowania dla nowej funkcji przez obecnego właściciela.

Skaning laserowy 3D

Inwentaryzacja architektoniczna willi i zabytków Warszawa, Kraków, Poznań, Gdańsk, Łódź, Wrocław

+48 794 246 362

Opracujemy precyzyjne plany Twojego zabytku. Skorzystaj z naszych usług profesjonalnego skanowania 3D i inwentaryzacji budowalnych do remontu, renowacji lub przebudowy.

Wpisz adres obiektu, który chcesz zeskanować. Opisz swoje wymagania dot. inwentaryzacji architektonicznej, np. szczegółowego zakresu. Jeżeli pracujesz w programie np. Revit czy Archicad określ czy masz przygotowany swój standard, w którym chciałbyś abyśmy wykonali dla Ciebie skanowanie 3D. Pozwoli to nam lepiej zrozumieć Twoje potrzeby i dopasować ofertę wykonania dokumentacji architektonicznej CAD i/lub modelowania z chmury punktów
Call Now Button