+48 794 246 362

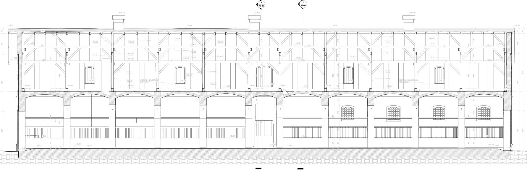
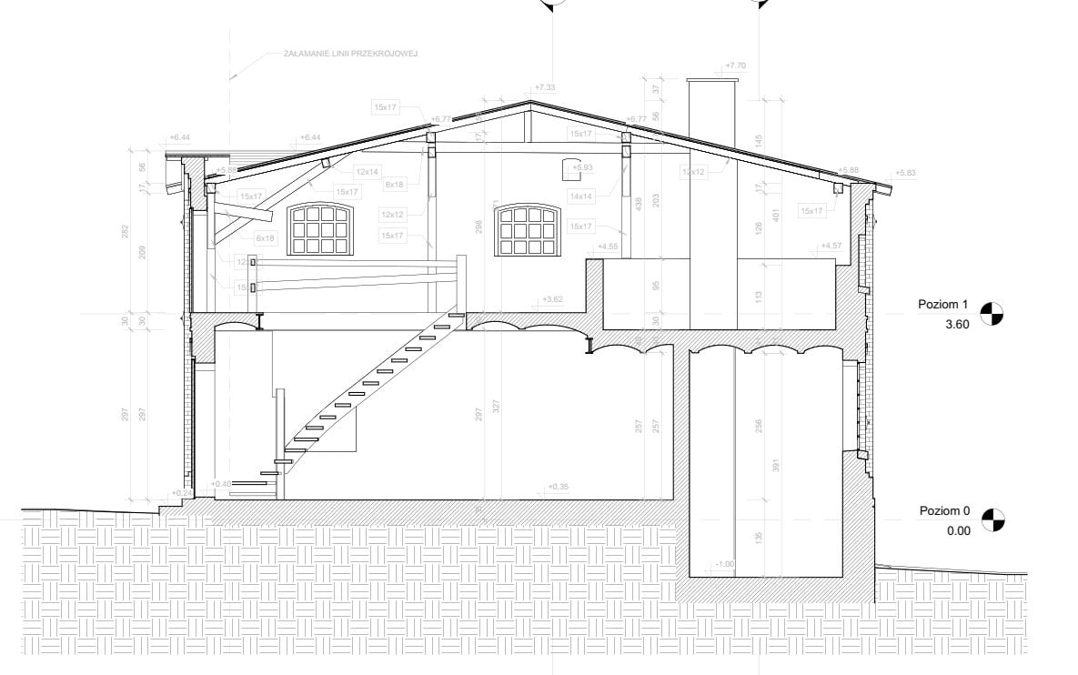
Inwentaryzacja zabytków. Skanowanie laserowe i model 3D Folwarku w Białokoszu
Potrzebujesz inwentaryzacji budowlanej zabytków do swojego projektu np. we Wrocławiu, Katowicach, Poznaniu, Krakowie?

Potrzebujesz inwentaryzacji budowlanej zabytków do swojego projektu np. we Wrocławiu, Katowicach, Poznaniu, Krakowie?








